Der europäische Markenhersteller HITZE bietet ein reichhaltiges Sortiment an Heizeinsätzen der Spitzenklasse.
Die Albero-Serie verfügt über Modelle mit flacher Verglasung und Eckscheibe mit Klapp- oder Schiebetür. Sie unterscheiden sich in den Abmessungen sowie Leistungen (lieferbar in den Leistungen 9, 11, 14, 16, 19 und 25 kW) – für jeden Geschmack und Geldbeutel findet sich sicher die richtige Feuerstelle in unserem Shop!
Die Firma HITZE entwickelt sich zunehmend zu einem der führenden Anbieter von Kamineinsätzen, wobei das Preis-/Leistungs-Verhältnis hervorragend ist. Die Feuerstellen von HITZE sind deshalb unsere absolute Empfehlung.
Die hochmoderne und sichere Brennraumtechnik sowie die vorhandene Scheibenspülung gewährleisten eine langanhaltende freie Sicht auf das Spiel der Flammen. Durch eine getrennte Primär-, Sekundär- sowie Tertiärluftzufuhr wird eine optimale Energieausbeute erzielt. Mit einem sehr hohen Wirkungsgrad gehört dieser zeitlose Kamin somit zu einem der Effizientesten seiner Klasse! Das spart Holz, schont die Umwelt und vermindert die Verbrennungsrückstände.
In diesem Dauerbrenner können sowohl trockenes Brennholz und Holzbriketts verbrannt werden. Der Brennraum ist mit hochwertiger Acumotte ausgekleidet. Diese massive, aber immer aktuelle Bauweise sorgt für Langlebigkeit und damit ungetrübter Freude am Flammenspiel. Dieses wärmespeicherfähige, beständige Material bildet einen schönen hellen Hintergrund. Die Flamme wirkt dadurch besonders brillant. Der Brennraum wirkt durch sein Rillendesign sehr elegant und ist sicher einer einfachen Brennraumplatte aus Vermiculit oder Schamotte vorzuziehen.
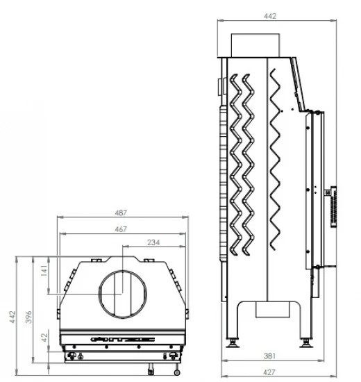
Der eingebaute Deflektor verlängert den Rauchgasweg und ermöglicht die Nachverbrennung der Rauchgase. Die Verbrennungsluft, welche über den externen Verbrennungsluftstutzen bezogen wird, wird sehr aufwendig in der Brennzelle verteilt. So entsteht ein Luftstrom für die Primärluft, ein weite
rer Luftstrom für die Sekundärluft (Scheibensauberkeit) sowie ein Luftstrom für die Tertiärluft (Nachverbrennung der Rauchgase).
Die Bedienung ist kinderleicht. Die Verbrennung wird nur über einen einzigen Primärlufthebel präzise gesteuert.
Die massiven Bauteile wurden durch einen hochmodernen Maschinenpark (CNC, 2D- und 3D- Laserschweißmaschinen sowie Pressen) gefertigt. Am Stahlkorpus (gefertigt aus hochwertigem Kesselstahl ) wurden zudem als Konstruktionsverstärkung und Verbesserung der Wärmestrahlung Stahlrippen angeschweißt. Außerdem wurden Warmlufttauscherrohre im Kaminhut integriert.
Dieser robuste Kamineinsatz erfüllt auf Grund seiner zukunftsweisenden Konstruktion die erforderlichen BIMSCHV-Emissionswerte für Deutschland (Stufe II).
Damit erfüllt die Feuerstelle die höchsten Ansprüche an Aufbau, Ästhetik und Design.
Wer einen robusten, qualitativen Heizeinsatz mit hervorragendem Preis-/Leistungs-Verhältnis wünscht, für jenen sollte die Suche jetzt ein Ende haben!
Der Kamin besitzt eine selbstschließende Tür (Bauart 1) und ist somit für die Mehrfachbelegung am Schornstein zugelassen.
Jetzt in der Grundausführung mit rahmenloser Sichtscheibe sog. DECOR-Ausführung.
Das Designglas ist nur mit einem kleinen Metallrahmen eingefast. Die Keramikglasscheibe ist von innen mit einem schwarzen Rahmen bedruckt, ähnlich wie bei modernen Mikrowellen. Die Glasfront wirkt somit moderner als bei Kaminen mit einem dicken Metallrahmen.
Die Highlights auf einem Blick:
– Gerade Tür mit großer, gerader „rahmenloser“ Design- Sichtscheibe
– Große Sichtscheibe mit Qualitätskaminglas, hitzebständig bis 800°C
– Kaminkörper (zusätzlich verstärkt mit Rippen) und Kaminfront aus massivem Kesselstahl
– Warmlufttauscherrohre und Strahlungsbleche für bessere Wärmeübertragung
– Tertiäre Luftzufuhr für Nachverbrennung der Rauchgase
– Externe Luftzufuhr DM 125mm / raumluftunabhängige Betriebsweise möglich
– Sekundärluftzufuhr / Scheibenspülung (Sauberkeit der Sichtscheibe über lange Zeit)
– Brennraum mit Acumotte
– Brennkammer mit Brennrost und Aschekasten
– Vielseitig zugelassene Brennstoffe (Holz, Holzbriketts)
– Hohe Leistung
– Große Holzscheite möglich
– Hoher Wirkungsgrad
– Dauerbrandfähig
– Kein zusätzlicher Feinstaubfilter notwendig
– Hervorragende Verarbeitung
– Deflektor aus Acumotte (verlängert den Rauchgasweg)
– Verstärkte Kamintür mit modernem Türgriff
– Regulierbare Füße
– Zulassung nach BimschV Stufe 2 sowie DINplus
QUALITÄTSKAMINEINSATZ HITZE ALBERO AL9S.V DECO
– Nennleistung (kW) 9
– Wärmeleistungsbereich (kW) 4,5-12
– Rauchrohrstutzen (mm) 180
– Wirkungsgrad (%) 78
– CO-Emission (bei 13% O²) (g/m³) 1,029
– Feinstaub-Emission (g/m³) 0,03
– Gewicht (kg) 112
– Max. empfohlene Holzlänge (cm) 30
– Zugelassener Brennstoff Holz, Holzbriketts
– Empfohlener Min.-Lüftungsquerschnitt der Warmluft (cm²) 1000
– Empfohlener Min.-Lüftungsquerschnitt der Kaltluft(cm²) 800
– Abmessung Sichtscheibe (mm) 390 x 545
Erfüllt die BimschV Stufe 2 für Deutschland sowie DINplus.






















Rezensionen
Es gibt noch keine Rezensionen.